Ring 02634

Nytt melkekufjøs

Vi har levert nytt melkekufjøs til Hans Christian Tandberg, Åmot.

Nytt melkekufjøs

Publisert:

Bygget i 2020 og startet opp 1. Februar i år.

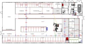
Eksisterende låve med fjøs ble revet, og nytt fjøs ble bygget på samme tomta. Eksisterende kjeller og gjødselkum ble benyttet. Bygget ble satt opp av Gardsbygg i massivtre-elementer fra Splitkon-fabrikken, som ligger i samme bygda.

Fjøset rommer 35 liggebåser for ku og sinku, ungdyr plass til 50% påsett, kalvingsbinger/sykebinger, kalvebinger og kalvebokser i tillegg til fôrsentral og servicerom. Vi har også levert en brukt Lely Astronaut A4 melkerobot, Lely, Collector gjødselrobot, mekanisk ventilasjon og FS plast stolper.

Vi takker for tilliten og ønsker lykke til.

Selger: Trygve Bore, [email protected], tlf. 469 32 990

-

    Kontakt oss

    Benytt skjemaet for å gjøre en henvendelse relatert til denne siden, så blir du kontaktet innen kort tid. Klikk her for å se oversikt over kontaktpersoner