Vi ønsker å gratulere Ivar Stangeland på Heigre!
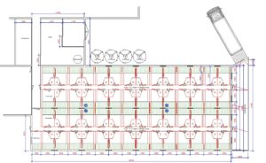
Ivar har valgt å bygge på 2 stk FT 30 avdelinger med 27 binger i hver. I tillegg har han gjort en større ombygging i eksisterende fjøs.
Her er det levert følgende utstyr og produkter:
– Fog vakuumutgjødsling
– Mik plastrister m/glassfiberbæring
– Glassfiberinnredning fra Skiold Jyden
– Ventilasjon fra Big Dutchman
– Dry Exact vektbasert porsjonsfôringsanlegg fra Big Dutchman
Her har vi også koblet på eksisterende våtfôringsanlegg slik at all fôring blir styrt fra samme styreskap.
Det er også blitt installert syreforstøver på blandetank for bedre fôrhygiene.
– Kraftfôrskruer til eksisterende siloer fra Big Dutchman
– Overbrusing og befuktningsanlegg
Fjøssystemer Vest takker for tilliten og ønsker lykke til med videre drift!
Selger: Ruben Prestegård Lende
[email protected] / tlf 404 73 278












